Главная
РЕАЛИЗАЦИЯ
Йотунхейм
Канадец 150 м²
УСАДЕБНЫЕ ДОМА
ГОСТЕВЫЕ ДОМА
БАННЫЕ КОМПЛЕКСЫ
КОМПАКТНЫЕ БАНИ
ГАРАЖИ
БЕСЕДКИ
ВОРОТА
КОНЦЕПЦИИ
ПРИМЕР РАБОЧЕГО ПРОЕКТА
ВДОХНОВИТЬСЯ
Видео
Услуги
Отзывы
Контакты
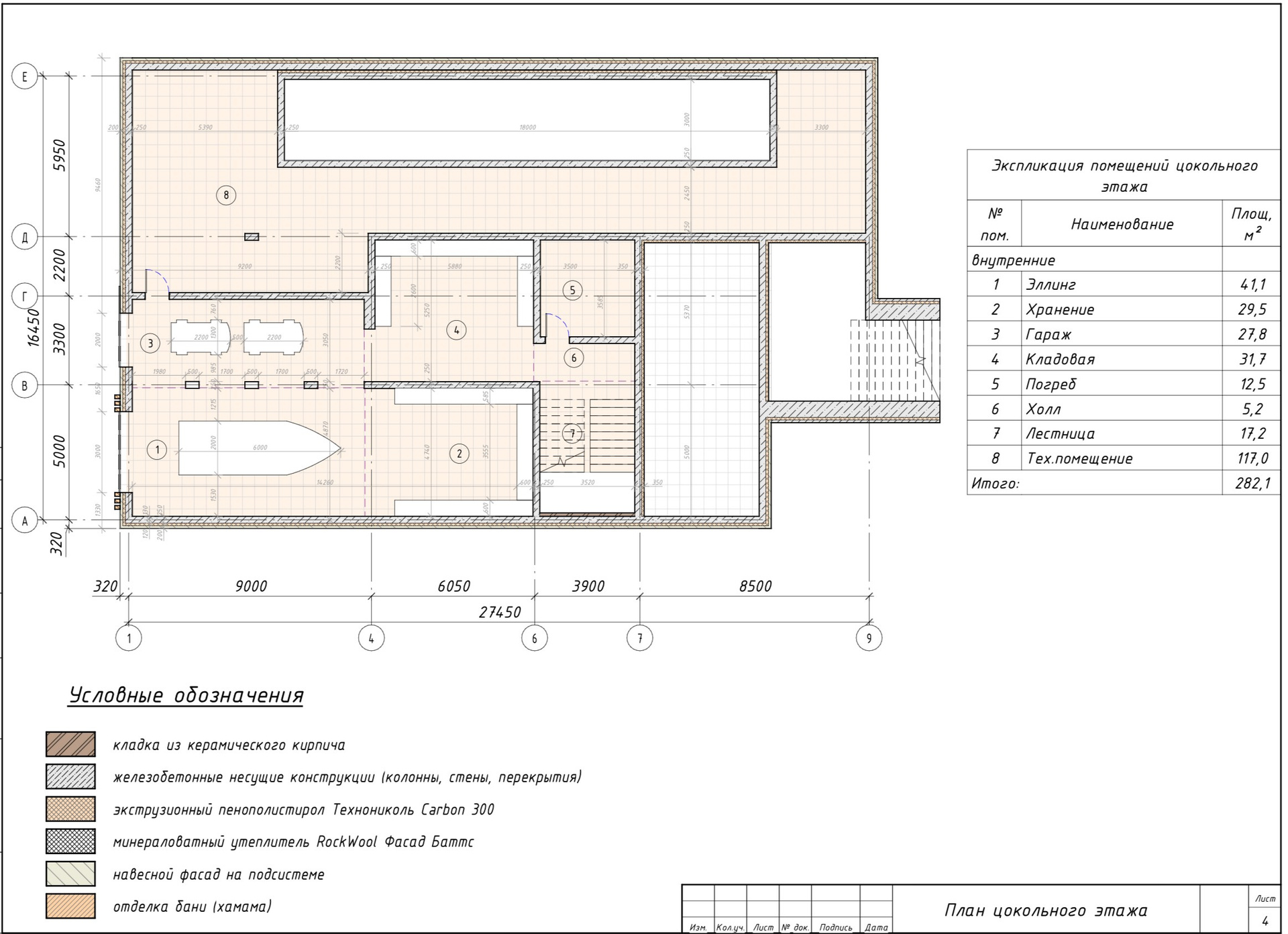
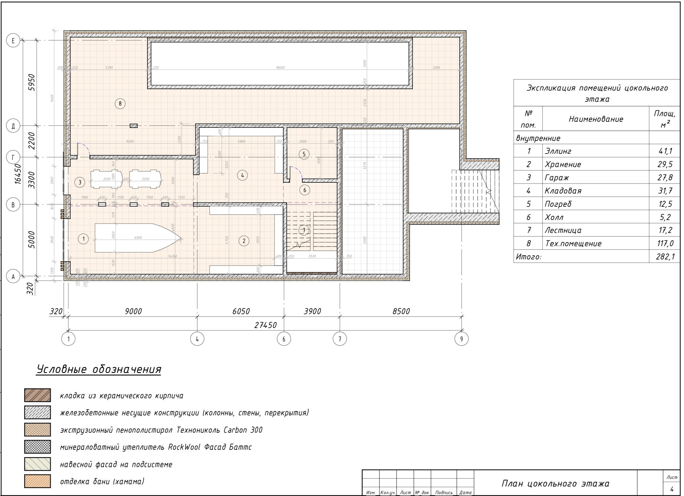
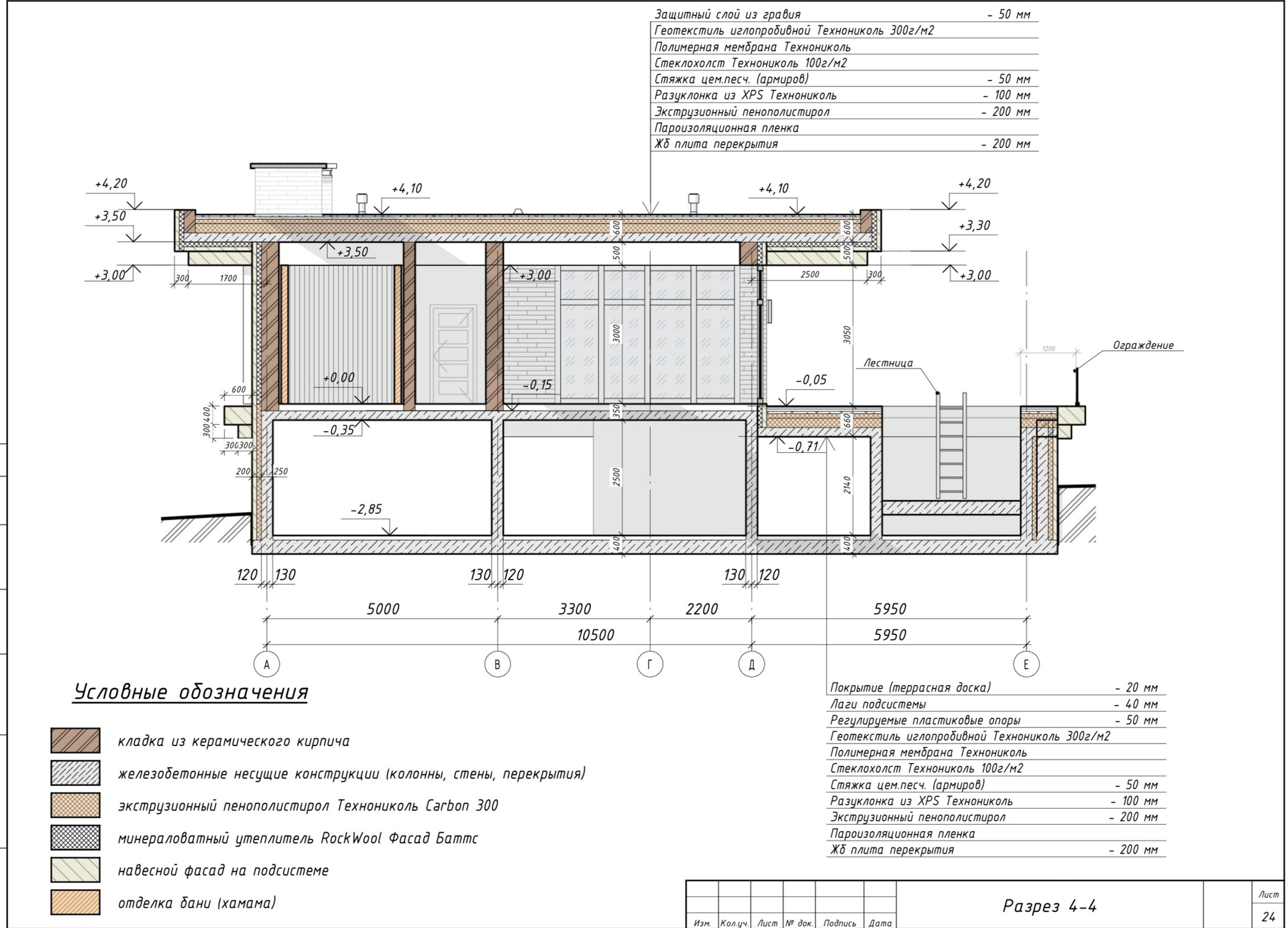
Банный комплекс с гаражом и бассейном в Твери
БАННЫЕ КОМПЛЕКСЫ
Царская баня, 500 м²
Скачать каталог проектов деревянных домов