Главная
РЕАЛИЗАЦИЯ
Йотунхейм
Канадец 150 м²
УСАДЕБНЫЕ ДОМА
ГОСТЕВЫЕ ДОМА
БАННЫЕ КОМПЛЕКСЫ
КОМПАКТНЫЕ БАНИ
ГАРАЖИ
БЕСЕДКИ
ВОРОТА
КОНЦЕПЦИИ
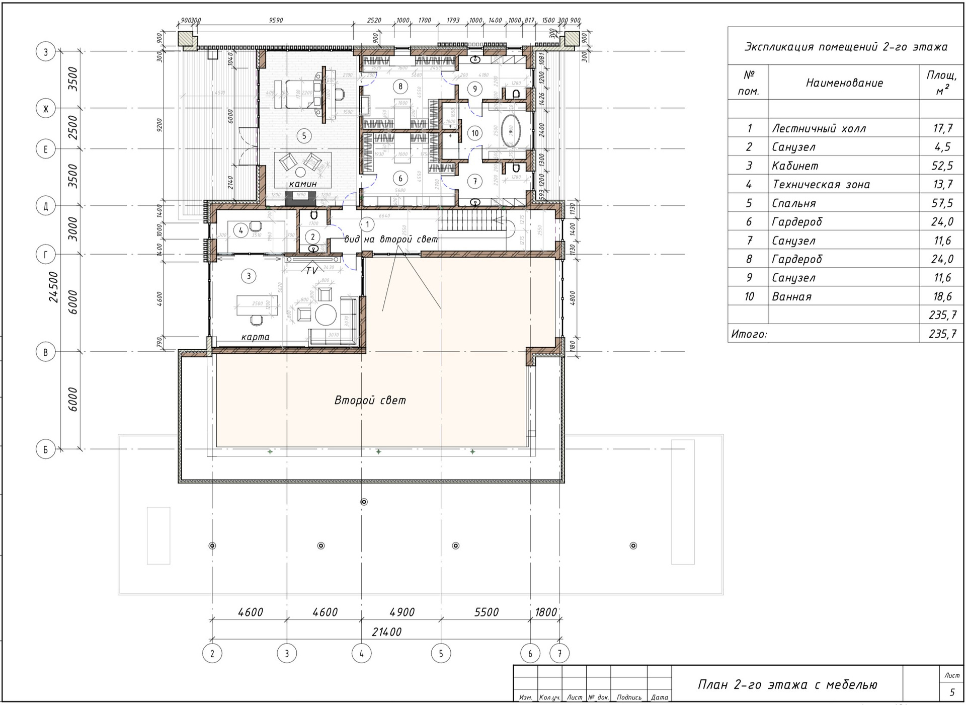
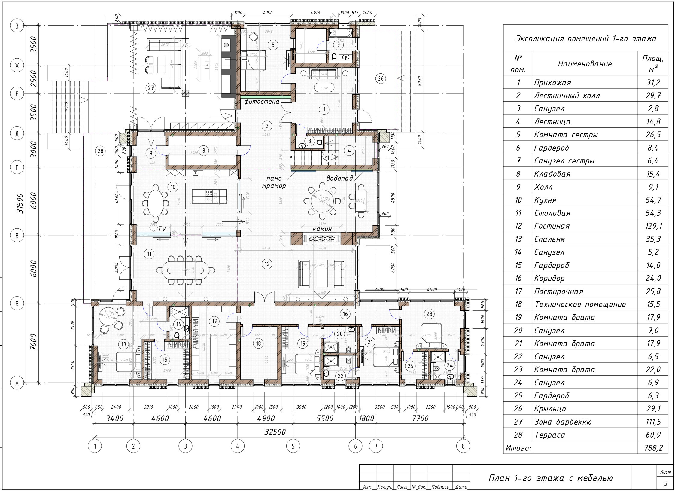
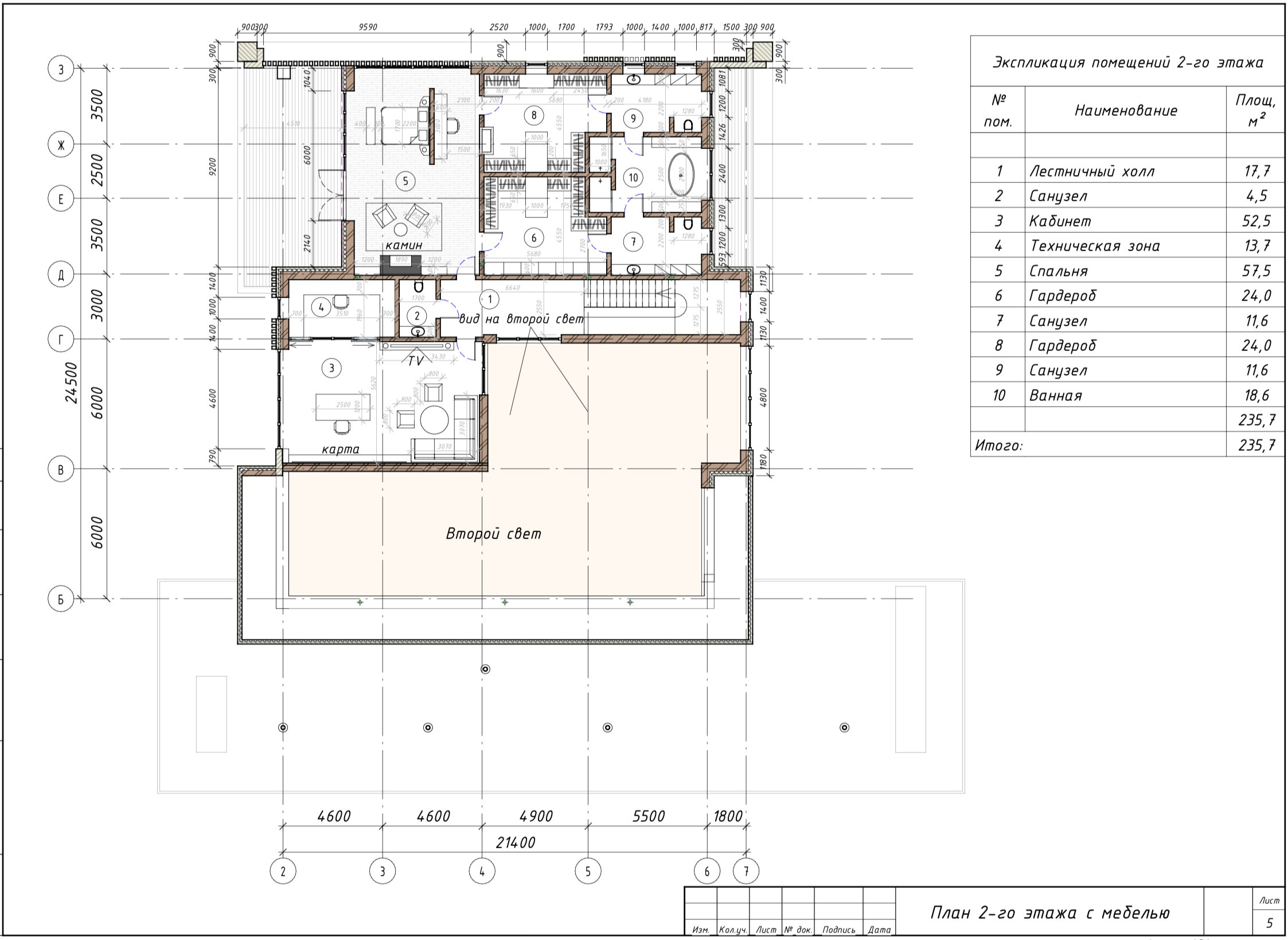
ПРИМЕР РАБОЧЕГО ПРОЕКТА
ВДОХНОВИТЬСЯ
Видео
Услуги
Отзывы
Контакты
ДОМ В ТВЕРИ
УСАДЕБНЫЕ ДОМА
ЙОТУНХЕЙМ, 450 м²,СПБ
Скачать каталог проектов деревянных домов